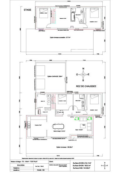
Maison contemporaine bois T6 - étage - 145m2 - CE 145
Une maison contemporaine ossature bois à votre mesure offrant une surface habitable de 145m2. Beaucoup de design, une terrasse accessible 215m2 à construire pour les beaux budgets.
Demander un devisLa construction ossature bois en détail
De nombreuses personnalisations possibles !
Demander un devisFinitions au choix :
- Isolation : ouate de cellulose
- Bardage : douglas / bac acier selon vos goûts
- Fermetures : Volets roulants manuels/motorisés…
- Menuiseries (double vitrage) : PVC / ALU / BOIS/BOIS ALU
- Revêtement intérieur : placo / gypso
Options possibles :
- Garage / Terrasse / Pergola / Marquise
- Poêle à bois ou à granulés / chauffe-eau solaire
- Dressing / Portes à galandage
