Maison contemporaine bois T5 - plain pied - 98m2 - C98
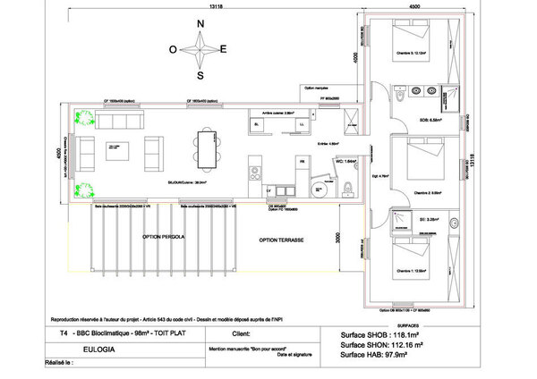
Une maison T4 à votre mesure offrant une surface habitable de 97,9m². Son style moderne propose de grandes ouvertures pour une luminosité optimale. La fonctionnalité de cette maison et l'agencement optimisé confèrent tout le confort nécessaire à votre bien-être. Une cuisine américaine ouverte sur le séjour-salle à manger pour plus de convivialité, 2 chambres, 1 salle de bain, et une suite parentale avec salle de bain privative pour plus d'intimité.
Demander un devisLa construction ossature bois en détail
De nombreuses personnalisations possibles !
Demander un devisFinitions au choix :
- Isolation : ouate de cellulose
- Bardage : douglas / bac acier selon vos goûts
- Fermetures : Volets roulants manuels/motorisés…
- Menuiseries (double vitrage) : PVC / ALU / BOIS/BOIS ALU
- Revêtement intérieur : placo / gypso
Options possibles :
- Garage / Terrasse / Pergola / Marquise
- Poêle à bois ou à granulés / chauffe-eau solaire
- Dressing / Portes à galandage
