Maison contemporaine bois T5 - étage - 94 à 122m2 - CE94/107/122
Une maison contemporaine T5 ossature bois à votre mesure offrant une surface habitable de 94,23 à 122 m2. Son style moderne propose de grandes ouvertures pour une luminosité optimale. La fonctionnalité de cette maison et l'agencement optimisé confère tout le confort nécessaire à votre bien-être. Une cuisine américaine, avec cellier et local technique, ouverte sur le salon-séjour pour plus de convivialité, 2 chambres avec salle de bain pour vos enfants, et une suite parentale avec salle de bain privative pour plus d'intimité accompagné d'un espace dressing.
Demander un devisInformations pratiques
Descriptif
Maison nature bois équipée de :
- 3 chambres
- 2 salles de bain
- 1 cuisine avec cellier
et local technique - Grand salon - Séjour de 35,31 m2
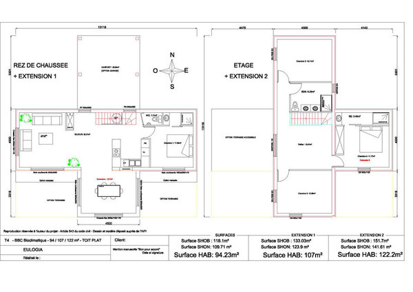
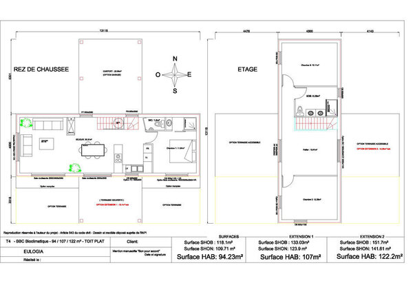
Détails techniques sur les surfaces :
CE94 :
- Surface SHOB : 118,1m2
- Surface habitable : 94,23m2
CE107 :
- Surface SHOB : 133,03m2
- Surface habitable : 107m2
CE122 :
- Surface SHOB : 151,7m2
- Surface habitable : 122,2m2
La construction ossature bois en détail
De nombreuses personnalisations possibles !
Demander un devisFinitions au choix :
- Isolation : ouate de cellulose
- Bardage : douglas / bac acier selon vos goûts
- Fermetures : Volets roulants manuels/motorisés…
- Menuiseries (double vitrage) : PVC / ALU / BOIS/BOIS ALU
- Revêtement intérieur : placo / gypso
Options possibles :
- Garage / Terrasse / Pergola / Marquise
- Poêle à bois ou à granulés / chauffe-eau solaire
- Dressing / Portes à galandage
