Maison contemporaine bois T4 de plain pied - 83 à 90m2 - C83/90
Une maison contemporaine T4 ossature bois à votre mesure offrant une surface habitable de 83m2. Son style moderne propose de grandes ouvertures pour une luminosité optimale. La fonctionnalité de cette maison et l'agencement optimisé confère tout le confort nécessaire à votre bien-être. Une cuisine américaine, avec cellier, ouverte sur le séjour-salle à manger pour plus de convivialité, 2 chambres avec salle de bain pour vos enfants, et une suite parentale avec salle de bain privative pour plus d'intimité.
Demander un devisInformations pratiques
Descriptif
Maison nature bois équipée de :
- 3 chambres
- 1 salle de bain
- 1 cuisine avec cellier
- Grand salon - Séjour de 37,87m2 ou 45,25m2
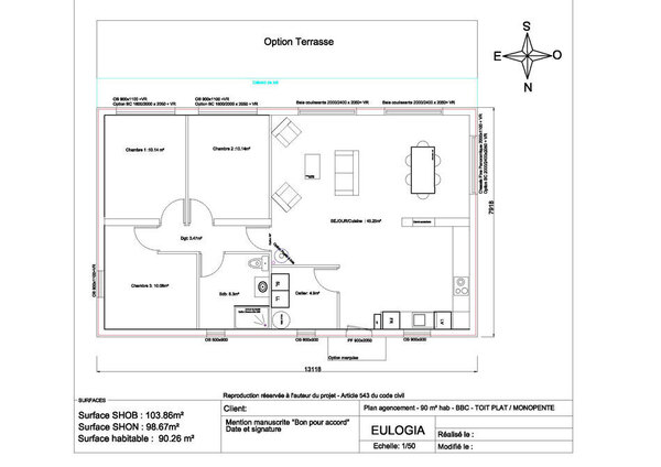
Détails techniques sur les surfaces :
C83 :
- Surface SHOB : 96m2
- Surface habitable : 91,15m2
C90 :
- Surface SHOB : 103,86m2
- Surface habitable : 90,26m2
La construction ossature bois en détail
De nombreuses personnalisations possibles !
Demander un devisFinitions au choix :
- Isolation : ouate de cellulose
- Bardage : douglas / bac acier selon vos goûts
- Fermetures : Volets roulants manuels/motorisés…
- Menuiseries (double vitrage) : PVC / ALU / BOIS/BOIS ALU
- Revêtement intérieur : placo / gypso
Options possibles :
- Garage / Terrasse / Pergola / Marquise
- Poêle à bois ou à granulés / chauffe-eau solaire
- Dressing / Portes à galandage
