Maison contemporaine bois T4 - 80 à 91m2 - C80/91
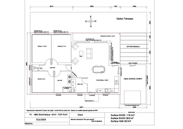
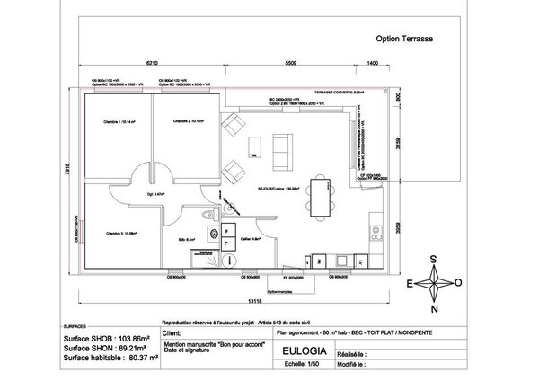
Une maison ossature bois contemporaine type 4 offrant une surface habitable de 80,37m2 et 90,7m2. Son style moderne propose de grandes ouvertures pour une luminosité optimale. La fonctionnalité de cette maison et l’agencement optimisé est idéale pour des logements locatifs. Une cuisine ouverte sur le séjour-salle à manger pour plus de convivialité, 3 chambres et une salle de bain confortable à deux pas des chambres.
Demander un devisInformations pratiques
Descriptif
Maison nature bois équipée de :
- 3 chambres
- 1 salle de bain
- Cuisine avec cellier
- Grand salon - Séjour de 35,36m2 ou 39,83m2
Détails techniques sur les surfaces :
C80 :
- Surface SHOB : 103,86m2
- Surface habitable : 80,37m2
C91 :
- Surface SHOB : 118,10m2
- Surface habitable : 90,70m2
La construction ossature bois en détail
De nombreuses personnalisations possibles !
Demander un devisFinitions au choix :
- Isolation : ouate de cellulose
- Bardage : douglas / bac acier selon vos goûts
- Fermetures : Volets roulants manuels/motorisés…
- Menuiseries (double vitrage) : PVC / ALU / BOIS/BOIS ALU
- Revêtement intérieur : placo / gypso
Options possibles :
- Garage / Terrasse / Pergola / Marquise
- Poêle à bois ou à granulés / chauffe-eau solaire
- Dressing / Portes à galandage
